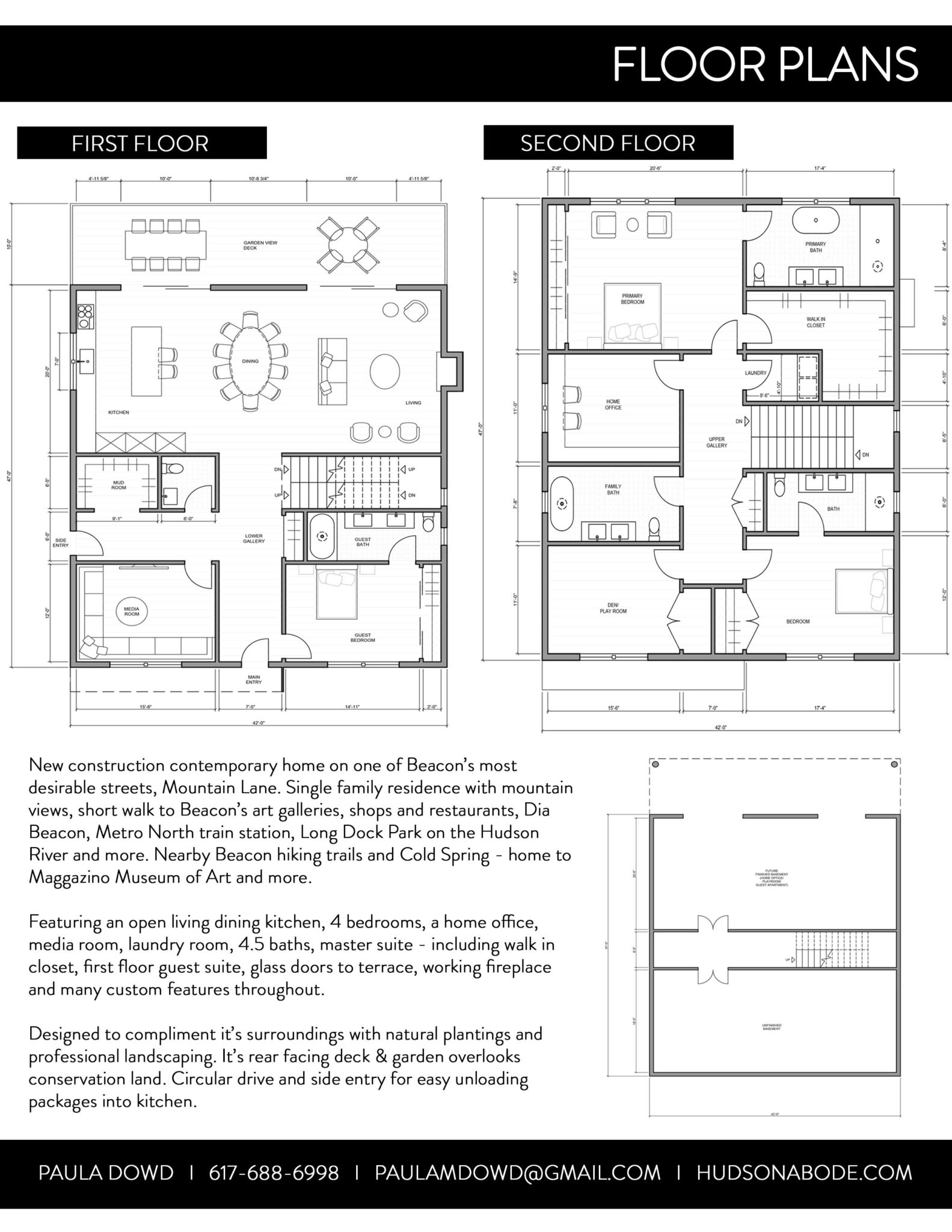
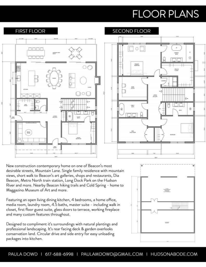
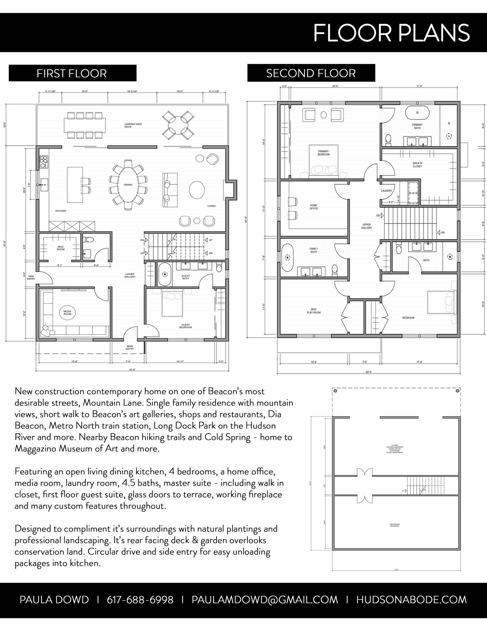
50 Mountain Lane Beacon, New York
Mountain Lane is one of the most desired locations in Beacon. Mountain views, country feel yet minutes to downtown Beacon, The Dia and Metro North Train Station. This new construction Contemporary 4 bedroom, 2 home offices, Media room, 3 and one half bath stunning home has an open living area with fireplace and glass walls to a rear terrace for al fresco dining. Beautiful master suite with ample closet space, 5 piece master bath with soaking tub and more. All designed for your 21 st century lifestyle

